
Different typologies . Living space 
Different typologies . Living space 
Different Elevations . Allotment 32 – 85 
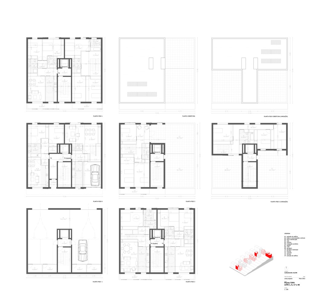
Different floor plans . Allotment 32 – 85
©copyright fspratleystudio
A feasibility project for a site located in Viana do Castelo (Portugal). Located on a steep topography, the challenge was to find a formula that would balance rationality and yet flexibility to adapt to current site conditions. Different typologies of apartments (from T0 to T4) were created for market appeal which allowed for a less strict rhythm on the facades.
Project: “Loteamento 32 – 85”
Client: Private
Type: Urban Project . Viana do Castelo (in collaboration Joana Carvalho /Tiago Borges)
Duration: November 2012 – February 2012
Surface: 3000 Sqm
Links: www.joanacarvalho.pt